Skip to content
NASLOVNICA
PROJEKTI
KONTAKT
NASLOVNICA
PROJEKTI
KONTAKT
tel: +385 99 6195 023
info@lalin-mont.hr
Search
Search
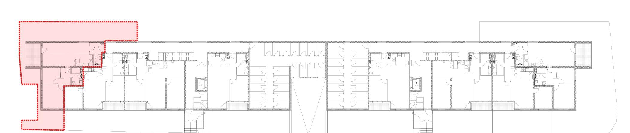
TLOCRT KATA
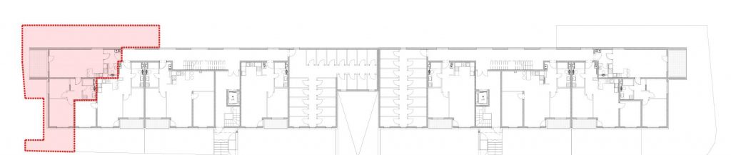
PROČELJE
STAN B4
ETAŽA:
Prizemlje
KVADRATURA:
77,18 m²
CIJENA:
Na upit
STATUS:
Slobodno
KONTAKT:
+385 99 6195 023
E-MAIL:
prodaja@lalin-mont.hr
POŠALJI UPIT
Na raspolaganju za sve informacije
Ime i Prezime
Email
Poruka
POŠALJI UPIT
Površine
Oznaka
Naziv prostorije
Kvadratura m²
B4.1
Ulaz
3.98m²
B4.2
WC
1.71m²
B4.3
Dnevni boravak
28.60m²
B4.4
Hodnik
4.78m²
B4.5
Kupaona
4.52m²
B4.6
Soba
6.62m²
B4.7
Soba
12.18m²
B4.8
Loggia
6.23m²
B4.9
Vrt
8.57m²
UKUPNO
77.18m²
NASLOVNICA
PROJEKTI
KONTAKT
tel:+385 99 6195 023
info@lalin-mont.hr
Ulica Stjepana Ladiša 15