TLOCRT KATA

PROČELJE

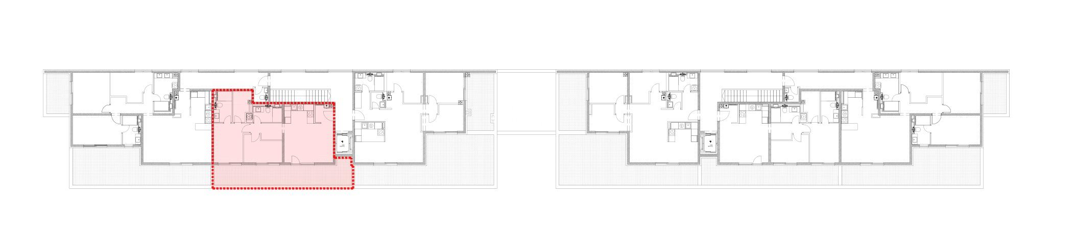
STAN B20

ETAŽA: Uvučeni kat

KVADRATURA: 64,73 m²

CIJENA: Na upit

STATUS: Prodano

KONTAKT: +385 99 6195 023

E-MAIL: prodaja@lalin-mont.hr

POŠALJI UPIT

Na raspolaganju za sve informacije

Površine

Oznaka Naziv prostorije Kvadratura m²
B20.1 ulaz 2.61m²
B20.2 dnevni boravak 21.06m²
B20.3 hodnik 3.94m²
B20.4 kupaona 4.63m²
B20.5 soba 7.92m²
B20.6 garderoba 4.02m²
B20.7 kupaona 4.41m²
B20.8 soba 10.23m²
B20.9 terasa 5.91m²
UKUPNO 64.73m²