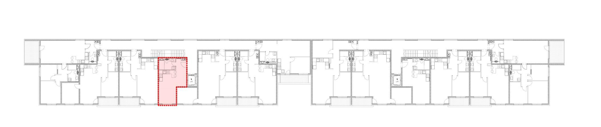
TLOCRT KATA

PROČELJE

STAN B15

ETAŽA: Drugi kat

KVADRATURA: 27,61 m²

CIJENA: Na upit

STATUS: Prodano

KONTAKT: +385 99 6195 023

E-MAIL: prodaja@lalin-mont.hr

POŠALJI UPIT

Na raspolaganju za sve informacije

Površine

Oznaka Naziv prostorije Kvadratura m²
B15.1 ulaz 3.10m²
B15.2 kupaona 4.61m²
B15.3 dnevni boravak 19.90m²
UKUPNO 27.61m²