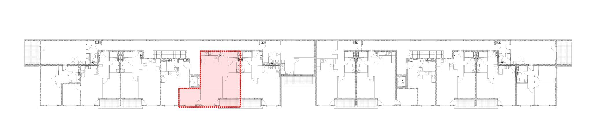
TLOCRT KATA

PROČELJE

STAN B14

ETAŽA: Drugi kat

KVADRATURA: 59,87 m²

CIJENA: Na upit

STATUS: Slobodno

KONTAKT: +385 99 6195 023

E-MAIL: prodaja@lalin-mont.hr

POŠALJI UPIT

Na raspolaganju za sve informacije

Površine

Oznaka Naziv prostorije Kvadratura m²
B14.1 ulaz 2.50m²
B14.2 kupaona 5.58m²
B14.3 dnevni boravak 29.80m²
B14.4 soba 10.60m²
B14.5 soba 8.75m²
B14.6 loggia 2.64m²
UKUPNO 59.87m²