Skip to content
NASLOVNICA
PROJEKTI
KONTAKT
NASLOVNICA
PROJEKTI
KONTAKT
tel: +385 99 6195 023
info@lalin-mont.hr
Search
Search
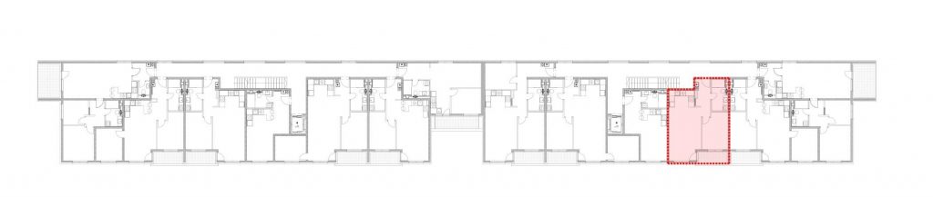
TLOCRT KATA
PROČELJE
STAN A7
ETAŽA:
Prvi kat
KVADRATURA:
47,73 m²
CIJENA:
Na upit
STATUS:
Rezervirano
KONTAKT:
+385 99 6195 023
E-MAIL:
prodaja@lalin-mont.hr
POŠALJI UPIT
Na raspolaganju za sve informacije
Ime i Prezime
Email
Poruka
POŠALJI UPIT
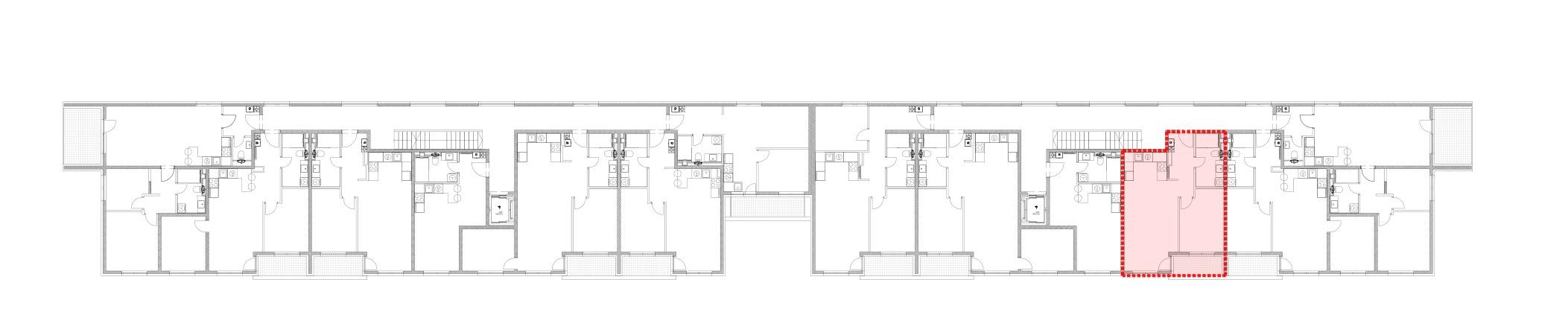
Površine
Oznaka
Naziv prostorije
Kvadratura m²
A7.1
ulaz
4.39m²
A7.2
kupaona
5.58m²
A7.3
dnevni boravak
24.52m²
A7.4
soba
10.60m²
A7.5
loggia
2.64m²
UKUPNO
47.73m²
NASLOVNICA
PROJEKTI
KONTAKT
tel:+385 99 6195 023
info@lalin-mont.hr
Ulica Stjepana Ladiša 15