TLOCRT KATA

PROČELJE

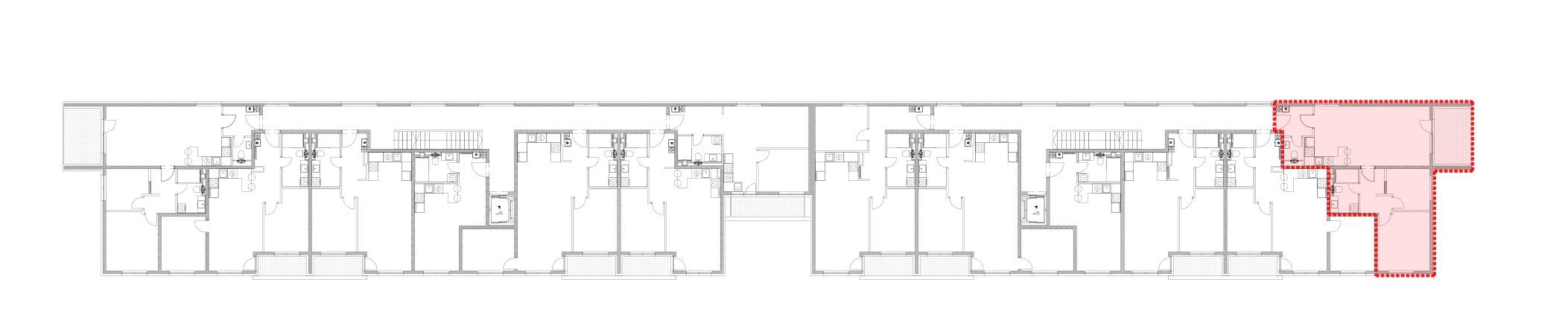
STAN A5

ETAŽA: Prvi kat

KVADRATURA: 68,62 m²

CIJENA: Na upit

STATUS: Prodano

KONTAKT: +385 99 6195 023

E-MAIL: prodaja@lalin-mont.hr

POŠALJI UPIT

Na raspolaganju za sve informacije

Površine

Oznaka Naziv prostorije Kvadratura m²
A5.1 Ulaz 3.98m²
A5.2 WC 1.71m²
A5.3 Dnevni boravak 28.60m²
A5.4 Hodnik 4.78m²
A5.5 Kupaona 4.52m²
A5.6 Soba 6.62m²
A5.7 Soba 12.18m²
A5.8 Loggia 6.23m²
UKUPNO 68.62m²