Skip to content
NASLOVNICA
PROJEKTI
KONTAKT
NASLOVNICA
PROJEKTI
KONTAKT
tel: +385 99 6195 023
info@lalin-mont.hr
Search
Search
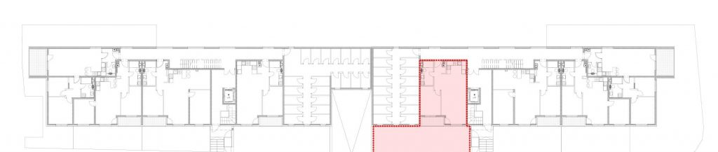
TLOCRT KATA
PROČELJE
STAN A4
ETAŽA:
Prizemlje
KVADRATURA:
56,62 m²
CIJENA:
Na upit
STATUS:
Slobodno
KONTAKT:
+385 99 6195 023
E-MAIL:
prodaja@lalin-mont.hr
POŠALJI UPIT
Na raspolaganju za sve informacije
Ime i Prezime
Email
Poruka
POŠALJI UPIT
Površine
Oznaka
Naziv prostorije
Kvadratura m²
A4.1
Ulaz
2.50m²
A4.2
Kupaona
5.58m²
A4.3
Dnevni boravak
29.80m²
A4.4
Soba
10.60m²
A4.5
Loggia
2.64m²
A4.6
Vrt
5.50m²
UKUPNO
56.62m²
NASLOVNICA
PROJEKTI
KONTAKT
tel:+385 99 6195 023
info@lalin-mont.hr
Ulica Stjepana Ladiša 15