Skip to content
NASLOVNICA
PROJEKTI
KONTAKT
NASLOVNICA
PROJEKTI
KONTAKT
tel: +385 99 6195 023
info@lalin-mont.hr
Search
Search
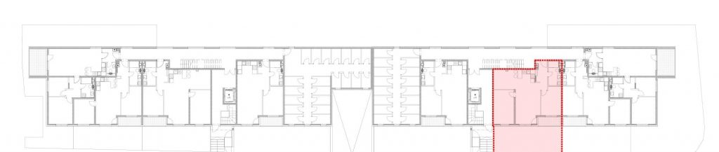
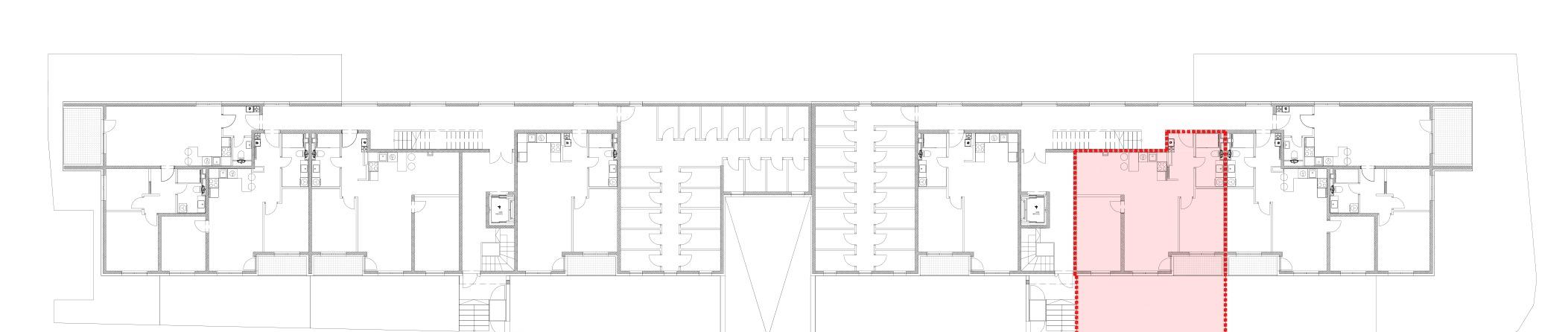
TLOCRT KATA
PROČELJE
STAN A3
ETAŽA:
Prizemlje
KVADRATURA:
73,17 m²
CIJENA:
Na upit
STATUS:
Slobodno
KONTAKT:
+385 99 6195 023
E-MAIL:
prodaja@lalin-mont.hr
POŠALJI UPIT
Na raspolaganju za sve informacije
Ime i Prezime
Email
Poruka
POŠALJI UPIT
Površine
Oznaka
Naziv prostorije
Kvadratura m²
A3.1
Ulaz
4.39m²
A3.2
Kupaona
5.58m²
A3.3
Dnevni boravak
32.62m²
A3.4
Soba
13.16m²
A3.5
Soba
10.60m²
A3.6
Loggia
2.64m²
A3.7
Vrt
4.18m²
UKUPNO
73.17m²
NASLOVNICA
PROJEKTI
KONTAKT
tel:+385 99 6195 023
info@lalin-mont.hr
Ulica Stjepana Ladiša 15