Skip to content
NASLOVNICA
PROJEKTI
KONTAKT
NASLOVNICA
PROJEKTI
KONTAKT
tel: +385 99 6195 023
info@lalin-mont.hr
Search
Search
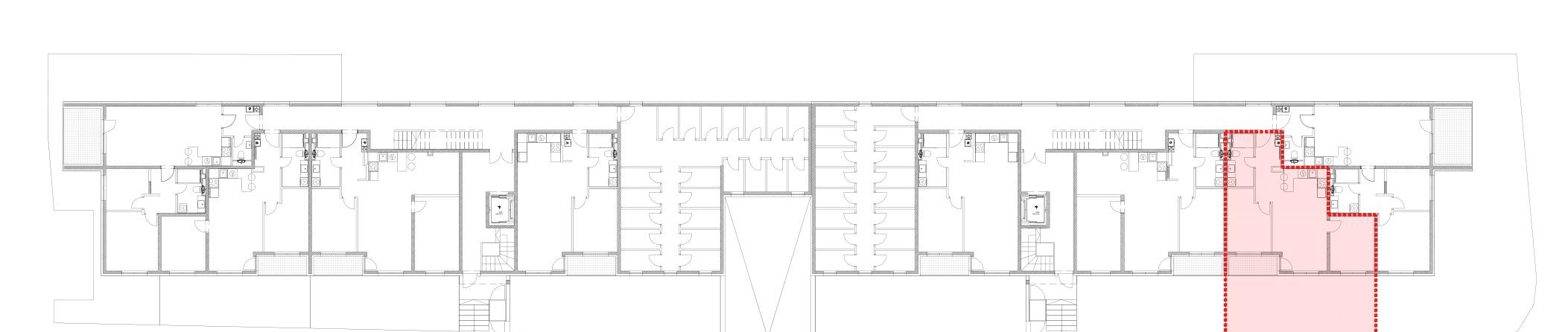
TLOCRT KATA
PROČELJE
STAN A2
ETAŽA:
Prizemlje
KVADRATURA:
58,87 m²
CIJENA:
Na upit
STATUS:
Prodano
KONTAKT:
+385 99 6195 023
E-MAIL:
prodaja@lalin-mont.hr
POŠALJI UPIT
Na raspolaganju za sve informacije
Ime i Prezime
Email
Poruka
POŠALJI UPIT
Površine
Oznaka
Naziv prostorije
Kvadratura m²
A2.1
Ulaz
3.24m²
A2.2
Kupaona
5.24m²
A2.3
Dnevni boravak
23.52m²
A2.4
Soba
9.66m²
A2.5
Soba
10.16m²
A2.6
Loggia
2.64m²
A2.7
Vrt
4.41m²
UKUPNO
58.87m²
NASLOVNICA
PROJEKTI
KONTAKT
tel:+385 99 6195 023
info@lalin-mont.hr
Ulica Stjepana Ladiša 15