Skip to content
NASLOVNICA
PROJEKTI
KONTAKT
NASLOVNICA
PROJEKTI
KONTAKT
tel: +385 99 6195 023
info@lalin-mont.hr
Search
Search
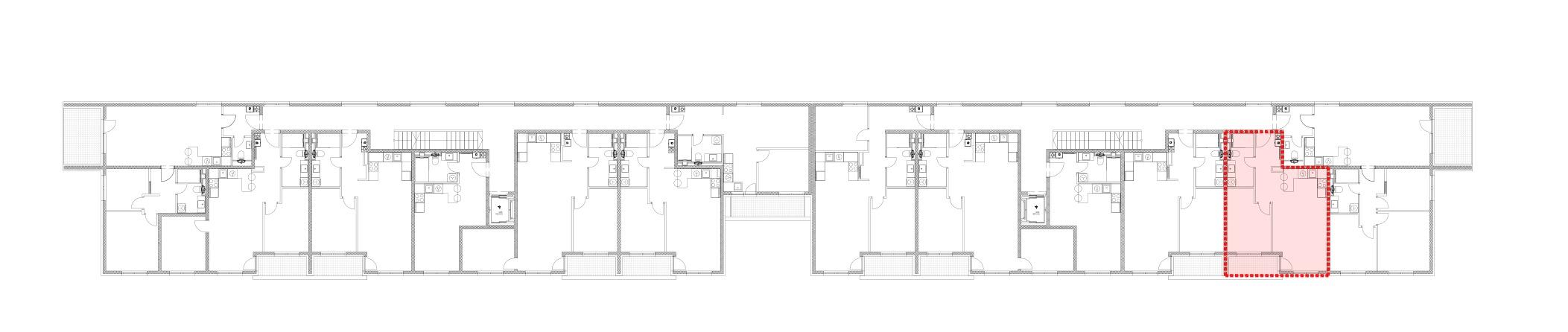
TLOCRT KATA
PROČELJE
STAN A12
ETAŽA:
Drugi kat
KVADRATURA:
44,80 m²
CIJENA:
Na upit
STATUS:
Prodano
KONTAKT:
+385 99 6195 023
E-MAIL:
prodaja@lalin-mont.hr
POŠALJI UPIT
Na raspolaganju za sve informacije
Ime i Prezime
Email
Poruka
POŠALJI UPIT
Površine
Oznaka
Naziv prostorije
Kvadratura m²
A12.1
ulaz
3.24m²
A12.2
kupaona
5.24m²
A12.3
dnevni boravak
23.52m²
A12.4
soba
10.16m²
A12.5
loggia
2.64m²
UKUPNO
44.80m²
NASLOVNICA
PROJEKTI
KONTAKT
tel:+385 99 6195 023
info@lalin-mont.hr
Ulica Stjepana Ladiša 15