Skip to content
NASLOVNICA
PROJEKTI
KONTAKT
NASLOVNICA
PROJEKTI
KONTAKT
tel: +385 99 6195 023
info@lalin-mont.hr
Search
Search
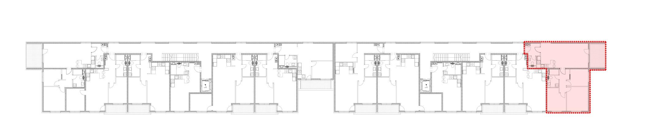
TLOCRT KATA
PROČELJE
STAN A11
ETAŽA:
Drugi kat
KVADRATURA:
78,88 m²
CIJENA:
Na upit
STATUS:
Prodano
KONTAKT:
+385 99 6195 023
E-MAIL:
prodaja@lalin-mont.hr
POŠALJI UPIT
Na raspolaganju za sve informacije
Ime i Prezime
Email
Poruka
POŠALJI UPIT
Površine
Oznaka
Naziv prostorije
Kvadratura m²
A11.1
ulaz
3.98m²
A11.2
WC
1.71m²
A11.3
dnevni boravak
28.60m²
A11.4
hodnik
4.48m²
A11.5
kupaona
4.52m²
A11.6
soba
7.56m²
A11.7
soba
12.38m²
A11.8
soba
9.42m²
A11.9
loggia
6.23m²
UKUPNO
78.88m²
NASLOVNICA
PROJEKTI
KONTAKT
tel:+385 99 6195 023
info@lalin-mont.hr
Ulica Stjepana Ladiša 15